Перейти к основному содержанию
Официальный сайт администрации Катав-Ивановского муниципального района Челябинской области
Катав-Ивановский округ
Об округе
Символика
История
Герои Советского Союза и РФ - наши земляки
"Они создавали Челябинскую область"
Карта округа
Предприятия и организации
АО "ЦЕМРОС"
АО "Катав-Ивановский приборостроительный завод"
ООО "Катав-Ивановский литейный завод"
ЗАО "СМАРТ"
ООО "Альба-цепь"
ООО "Изодом"
ООО "Юрюзань-Полимер"
МООО "Катав-Ивановское АТП"
Инвестиции и развитие округа
Минимальный инвестиционный стандарт
Инвестиционный профиль
Информация для инвесторов
Инвестиционный Уполномоченный КИМР
Контактные данные ответственных за развитие инвестиционного климата
Отчеты инвестиционного уполномоченного
Инвестиционная привлекательность
Стратегия социально-экономического развития
Государственная поддержка
Инвестиционный паспорт
Внедрение Муниципального инвестиционного стандарта Челябинской области
Линия прямых обращений
Содействие развитию конкуренции
Содействие развитию конкуренции
Антимонопольный комплаенс
СЗПК
Инвестиционные площадки
Информация о свободных земельных участках
Информация о ходе реализации "дорожных карт" по внедрению целевых моделей в КИМР
По состоянию на 01.01.2021
По состоянию на 01.01.2020 г.
По состоянию на 01.01.2019
По состоянию на 01.04.2017 год
По состоянию на 1.01.2018 год
По состоянию на 1.07.2017 год
По состоянию на 1.10.2017 год
Организация проектной деятельности
Программа социально-экономического развития на 2020 г и плановый период до 2025 г
Частно-муниципальное партнерство
Инвестиционные проекты
Инвестиционный портал Челябинской области
Торги по продаже права аренды/собственности на земельные участки
Обратная связь
Новости
Социально-экономическое положение Катав-Ивановского муниципального округа
Публикации
Туризм
Легенды о округе
Водопад Атыш
Гора Иремель
Гора Поперечная, гора Антенная
Каменный Форфос
Серпиевский пещерный град
Серпиевский пещерный град
Зигальга
Инвестиционные площадки
Иремель
Отбор инвестиционных проектов в сфере туризма
Перечень свободных земельных участков для рекреационных целей
Расписание (сельских) маршрутов движения автобусов
Туристский паспорт
Видеообзор
Отели
Гостиница «Синегорье»
Гостиница «Лесная жемчужина»
Органы власти
Глава Катав-Ивановского муниципального округа Челябинской области
Статус и полномочия
Биография
Выступления
График приема
Отчеты
Конкурс по отбору кандидатур на должность главы Катав-Ивановского муниципального округа Челябинской области
Бюджет для граждан
Администрация округа
Органы управления (структура)
Кадровое обеспечение
Вакансии
Порядок поступления
Требования к кандидату
Условия и результаты конкурсов
Кадровый резерв
Контактная информация
Информация об участии в целевых и иных программах
Информация о результатах проверок
Информация о состоянии защиты населения
Статистическая информация о деятельности администрации
Комиссии
Комиссия по урегулированию спорных вопросов с гражданами при переселении их из аварийного жилищного фонда
Психолого- медико- педагогическая комиссия
По предоставлению субсидий организациям, осуществляющим выпуск печатных СМИ
Административная комиссия
Комиссия по делам несовершеннолетних
Комиссия по конфликту интересов
Межведомственная комиссия
Данные о результатах СОУТ
Перечень информационных систем
"Горячая линия" по борьбе с коррупцией
Собрание депутатов
Депутатский корпус
Комиссии
График приема
Депутатский центр
Публичные слушания
Общая информация
Решения собрания депутатов КИМО 2026 год
Решения Собрания депутатов 2025 - новый созыв
Решения Собрания депутатов 2025
Решения Собрания депутатов 2024
Решения Собрания депутатов 2023
Решения Собрания депутатов 2022
Решения Собрания депутатов 2021
Решения Собрания депутатов 2020
Решения Собрания депутатов 2019
Решения Собрания депутатов 2018
Решения Собрания депутатов 2017
Решения Собрания депутатов 2016
Решения Собрания депутатов 2015 (новый созыв)
Решения Собрания депутатов 2015
Решения Собрания депутатов 2014
Решения Собрания депутатов 2013
Решения Собрания депутатов (архив)
Планы работы
Отчеты о работе
Контакты
ПОС Решаем вместе
Контрольно-счетная палата
Общая информация
Структура
Полномочия
Информация
Нормативно-правовая база
Отчеты о работе
Планы работы
Контакты
Противодействие коррупции
Новости
Поселения
Населённые пункты Катав-Ивановского муниципального округа
Катав-Ивановское городское поселение
Юрюзанское городское поселение
Бедярышское сельское поселение
Верх-Катавское сельское поселение
Лесное сельское поселение
Месединское сельское поселение
Орловское сельское поселение
Серпиевское сельское поселение
Тюлюкское сельское поселение
Официальные документы
Устав округа
Бюджет
Муниципальные программы
Доклады о результатах и основных направлениях деятельности
Сотрудничество
Архив
Документы стратегического планирования
Информация
Финансовое управление
Бюджет для граждан
Информация и документация
Бюджет
2020 год
Исполнение бюджета
Проект бюджета
ЮЗЭД
Реестр расходных обязательств
Контакты
Архивный отдел
Нормативно-правовые акты
Список фондов
Перечень услуг
Календарь знаменательных дат
Мероприятия
Госуслуги
Списки раскулаченных
Список эвакуированных граждан
Контакты
ЖКХ
ООО «КСК»
Информация
Контакты
Нормативно-справочная информация
ООО «СКС»
Информация
Контакты
Нормативно-правовые акты
МУП "ТеплоЭнерго"
Информация
Контакты
Нормативная документация
Статистика
ЗАГС
Общая информация
Информация и документация
Фотоотчеты
Торжественная церемония имянаречения 01.06.2016
Международный день семьи 2016
Красная горка 2016
Чествование супружеских пар к 9 мая 2016 года
День народного единства 2015
День пожилого человека 2015 г
Фотовыставка «Семьи после войны - Золотой фонд страны»
« Красная горка» 2015
Изумрудная свадьба - супруги Чечеткины
Изумрудная свадьба - супруги Швалевы
18 декабря 2017 года служба ЗАГС отметила свой 100-летний юбилей
День Св. Валентина 2014 г.
День семьи-супруги Гасовы-железная свадьба
День семьи, любви и верности 2012
День защиты детей 2012
Кадастровая палата
Информация
Кадастровая палата
ТО ОГАУ «МФЦ»
Новости
Контакты
МОВО по г. Катав-Ивановску и г. Усть-Катаву
Налоговая инспекция
Структура инспекции
График работы
Адреса
Телефоны
Реквизиты
Новости
Оnline-сервис
ОМВД России по Катав-Ивановскому муниципальному округу
Информация
Контакты
Антитеррористическая комиссия
Отдел общественной безопасности
Отдел внутреннего контроля
Отдел охраны окружающей среды
Контакты
Нормирование и плата за НВОС
Состояние атмосферного воздуха (НМУ)
Планы проведения проверок
Результаты проверок
Календарь экологических дат
Программы
Новости
Отдел по мобилизационной работе
Законодательство РФ
Нормативно-правовые акты
Отчеты
Контакты
Охрана труда
Рекомендации
Охрана труда
Контакты
Законодательство
Межведомственная комиссия
Муниципальные программы
Нормативно-правовая база
Федеральные законы
Государственные стандарты
Законы Челябинской области
НПА муниципального образования
Специальная оценка условий труда
Несчастные случаи на производстве
Ответственность работодателя
Информация
Итоги
Телефоны "горячей линии"
Работы на высоте
Присяжные заседатели
Органы прокуратуры
Прокуратура г.Катав-Ивановска
Прокурор разъясняет
Контакты
Новости
Транспортная прокуратура
Военная прокуратура
Природоохранная прокуратура
Росреестр
Информация
ТСЖ
ТСЖ «Жилпоселок»
ТСЖ «Урал»
ТСЖ «Доверие»
ТСЖ «Четыре+»
ТСЖ «Содружество»
ТСЖ «Наш дом 46»
ТСЖ "Центральное"
ТСЖ "НОВОСТРОЙ"
ТСЖ "Домовой"
ТСЖ "Стройгородок"
Территориальная избирательная комиссия
Управление коммунального хозяйства, транспорта и связи
Социальный фонд России
Информация
Контакты
Социум
Здравоохранение
Информация для пациентов
Контактная информация
Культура
Общая информация
МУК "Муниципальное объединение библиотек"
Детская школа искусств
Программы
Конкурсы и фестивали
Дни городских и сельских поселений
День села. Тюлюк 2014г
День города Юрюзань 2014 г.
День села Меседа 2014 год
День села Серпиевка 2014 год
День города. Катав-Ивановск. 2014 год
Клубы по интересам и любительские объединения
Ссылки для скачивания материалов
Образование
Официальный сайт Управления образования администрации округа
Контакты
Документы
Областной конкурс "Учитель года-2014"
Победитель областного конкурса "Учитель года-2014"
Победитель областного конкурса 2013 года
Представитель Катав-Ивановского района 2014 года
Место проведения конкурса
О Катав-Ивановском округе
МОУ СОШ №1 г. Катав-Ивановска
Схема проезда
Программа конкурса
Список участников
Официальные документы
Новости
Газета «Точка зрения»
Фотоотчеты
Видео
Приказы и письма Министерства образования и науки Челябинской области
Общественные организации и политические партии
Всероссийская политическая партия "ЕДИНАЯ РОССИЯ"
Общественная женская организация "Союза женщин" Катав-Ивановского муниципального округа
Общественные организации
Политическая партия Справедливая Россия
Политическая партия КПРФ
Политическая партия ЛДПР
Итоги праймериз 2015
Общественная приемная Губернатора Челябинской области
Служба занятности
Информация о лучших работодателях
Нормативные правовые акты
Общая информация
Опросы
Социальная защита населения
Управление социальной защиты населения
Комплексный центр социального обслуживания
Социально-реабилитационный центр для несовершеннолетних
Центр помощи детям, оставшимся без попечения родителей
Бланки заявлений
ЕГИССО
Средства массовой информации
Местные СМИ
Поддержка СМИ
Спорт и молодежная политика
Общая информация
Новости
Программы
Положения и результаты соревнований
Фотоотчеты
Муниципальный этап всероссийских спортивных соревнований школьников "Президентские состязания"
Чемпионат и открытое первенство Челябинской области по бодибилдингу, бодифитнесу и фитнесу 12.04.14
Олимпийский урок в ЮТТ 10.04.2014
Соревнования по стрельбе из пневматического оружия среди молодежи
Лыжная эстафета на приз главы Катав-Ивановского района 2014 г.
Всероссийский чемпионат "Здоровый как Лось-2018" 2/06/2018
Легкоатлетическая эстафета, посвященная Дню Победы 1.05.2018
Туристический слет студентов техникума, посвящённый памяти Подобина В.В.
ГТО
Взаимодействие и поддержка СО НКО
Защита прав потребителей
Общественная палата Катав-Ивановского муниципального округа
Противодействие экстремизму
Система обращения с ТКО
Цифровое телерадиовещание
Информация
Контакты
День Победы в Великой Отечественной войне
Новости
Герои СССР Катав-Ивановского округа
Челябинская область в годы войны
Официальная информация
Контакты
Архив Катав-Ивановского муниципального района
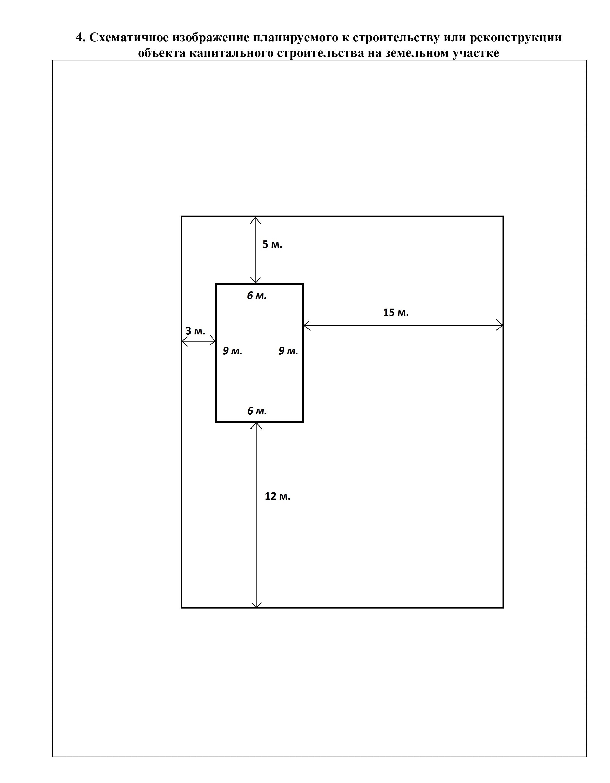
Прикрепленные файлы
Вложение
Размер
Архив
(760.17 КБ)
760.17 КБ
Архив
(1.03 МБ)
1.03 МБ