Прикрепленные файлы
| Вложение | Размер |
|---|---|
| Образец уведомления о планируемой реконструкции (202.81 КБ) | 202.81 КБ |
| Образец схемы реконструкции (153.9 КБ) | 153.9 КБ |
| Образец схемы реконструкций 1 (48.67 КБ) | 48.67 КБ |
| Образец о планируемой постройки (278.46 КБ) | 278.46 КБ |
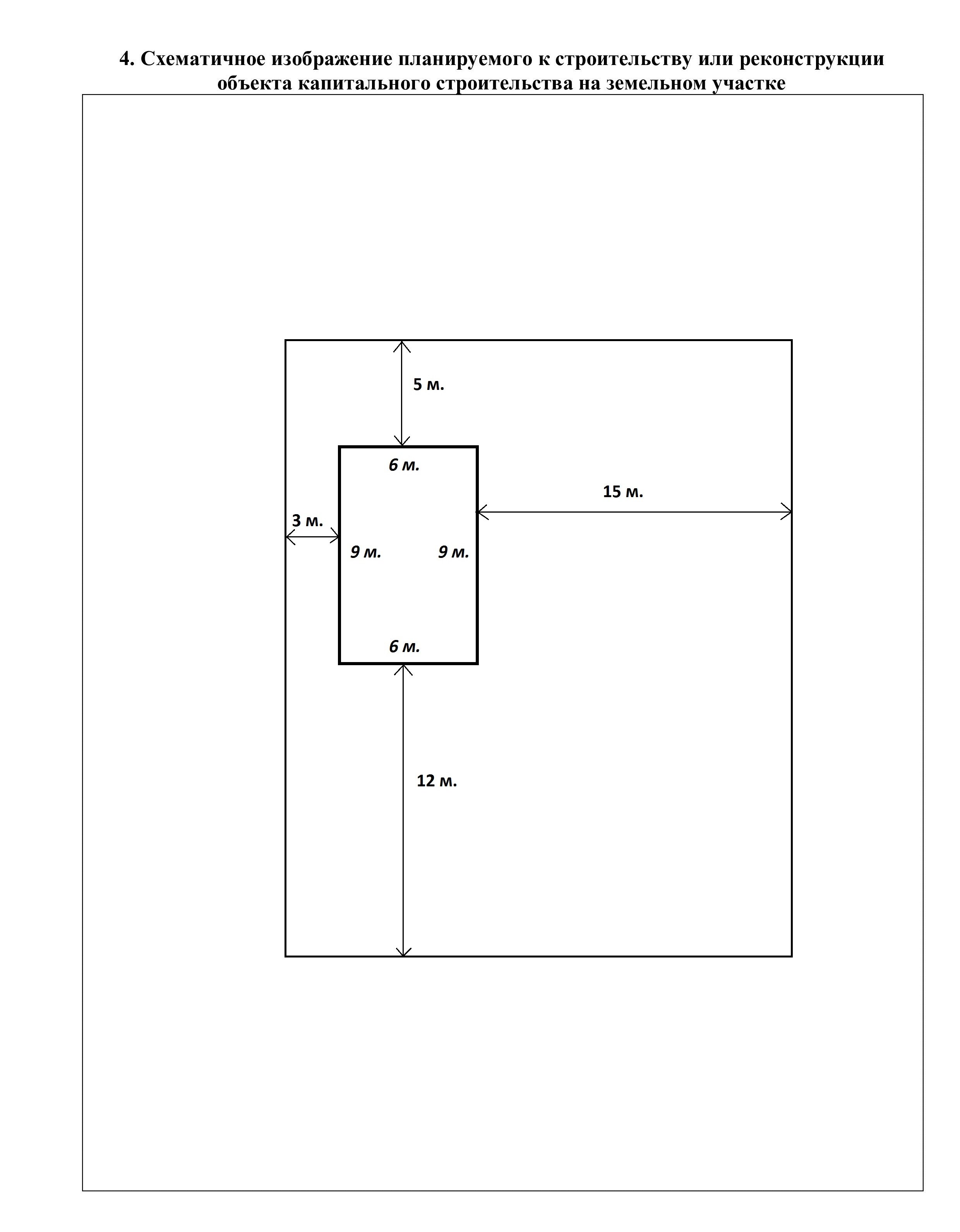
| Как правильно сделать схематичное изображение планируемого к строительству ОКС (49.79 КБ) | 49.79 КБ |
